用户帮助
设为主页
收藏本站
钟祥
登录
注册
Toggle navigation
首页
关注
热榜
首页
关注
热榜
综合
综合
用户
主题
首页
关注
热榜
综合
综合
用户
主题
Toggle navigation
情系钟祥
商情
房产
交友
爱秀
摄影
美食
旅游
钓鱼
宠物
教育
文学
流金
招聘
二手
汽车
装修
运动
情系钟祥
商情
房产
交友
爱秀
摄影
美食
旅游
钓鱼
宠物
教育
文学
流金
招聘
二手
汽车
装修
运动
灌水
结婚
站务
情系钟祥
商情
房产
交友
爱秀
摄影
美食
旅游
钓鱼
宠物
教育
文学
流金
招聘
二手
汽车
装修
运动
|
更多栏目
单击访问栏目,登录后可拖拽进行排序
我的栏目(显示在导航)
情系钟祥
商情
房产
交友
爱秀
摄影
美食
旅游
钓鱼
宠物
教育
文学
流金
招聘
二手
汽车
装修
运动
其他栏目
灌水
结婚
站务
×
提示信息
请手动将本站设为主页
×
提示信息
请按 Ctrl+D 键添加到收藏夹
×
提示
刷新成功
确定要取消收藏吗?
确定
取消
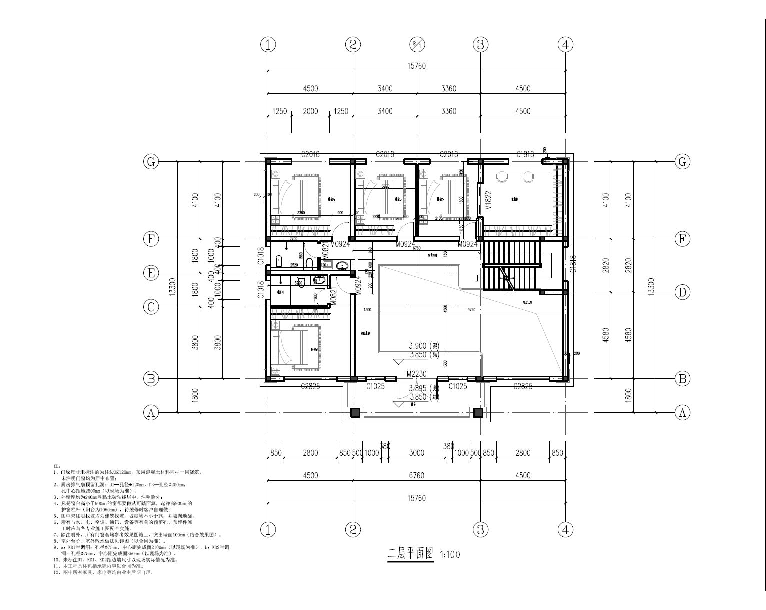
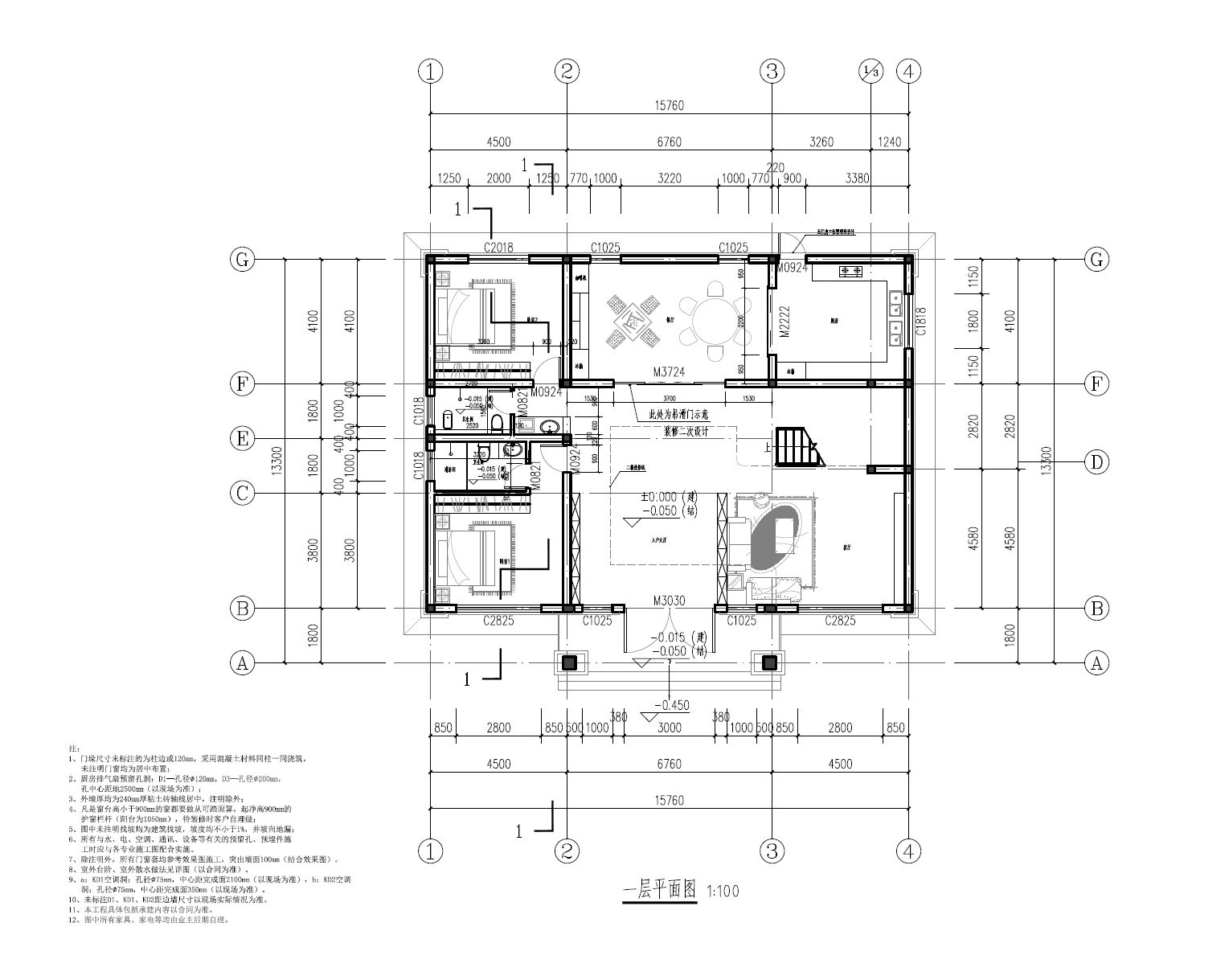
施工图来了,包工包料什么都不用您操心!
01-01 13:27
发表于
装修
阅读
1.4万
回复 12
MIKO觅可
粉丝
17
关注
举报
分享
0
回复
12
点赞
1
收藏
0
请先
登录
后再发布回复
我的回复
最早
最新
最热
dbonada 最后回复于 01-10 22:36
一娄清风
粉丝
42
关注
多少钱一平
01-01 21:04
回复
0
MIKO觅可
作者
:850
01-02 15:30
回复
一把柳叶刀
粉丝
20
关注
二楼起居厅太大了,这个户型要优化一下
01-02 08:27
回复
0
MIKO觅可
作者
:根据客户定制的,就想要大的
01-02 15:31
回复
wsj_520
:他这个没问题啊,起居室的大小是根据整个房子面积来做的,以商品房来说,面积有限,只能够把起居缩小,把客餐厅放大,这是基于现在人们注重个人隐私,去他人家串门,大多数情况下都是在客餐厅活动,避免进入他人起居室,而他这个私房,占地面积够大,完全可以把起居室放大,让自己住得更舒适
01-02 20:59
回复
徐三多
粉丝
18
关注
有钱人的世界就是豪横,房间多,空间大,浪费性极大,土豪
01-02 10:24
回复
0
Zhon祥
粉丝
95
关注
我看到一家这样建的,空间太大,人口多行,人少了住里面闹鬼!要请拥人才行,要不过扫卫生搞死人
01-02 11:02
回复
1
MIKO觅可
作者
:有点夸张了
01-02 15:32
回复
dbonada
粉丝
40
关注
想问一下师傅,现在盖一层也是要钢筋现浇水泥吗?没有之前那种砖砌到顶的?
01-03 11:12
回复
0
MIKO觅可
作者
:有,可以不用,主要看做多大,小没事
01-04 15:47
回复
dbonada
:像老房子一样小点的,砖砌一般多少钱一平方?
01-10 22:36
回复
孤悬海外
粉丝
35
关注
有地还是那种一层合院舒服。。。
01-04 09:06
回复
0
正在努力加载...
赞过的人
复制链接后可粘贴发给好友!
复制链接
取消分享
确定要取消收藏吗?
确定
取消
举报
请点击举报理由
发布商业广告请先办理手续交费
请注意相似内容勿重复发布
请补充具体事实和依据后重发
提醒注意文明理性发言
平台不涉及此类话题
禁止发布各种群号
其他
确认
是否取消关注?
确定
取消
×
为了您的账号安全,请绑定手机号后发布回复。
×
提示
您的用户组没有权限,详见
帮助
×
该主题已被管理员关闭,暂时不接受新回复。
1
/
图
修改
钟祥论坛
号
温馨提示
用户账号安全系统已全面升级
1、以前的登录“用户名”变为“昵称”,仍对外展示
2、新增“
钟祥论坛
号”一项,用作登录,不对外显示,账号更安全
3、老用户的
钟祥论坛
号默认为昵称,建议修改下更安全
4、升级后共有三项:
钟祥论坛
号(登录用)、手机号(登录用)和昵称(显示用)
钟祥论坛
号
*以字母开头的字母、数字组合,4-16位
性 别
男
女
确 认
下次再改
×
提示窗口
赞过的人